ライオンズマンション飛鳥山 - 優和株式会社が提供する中古マンション情報
4,799万円管理費等20,240円

【ライオンズマンション飛鳥山の外観】 住む人を映し出す洗練された佇まいは、いつまでも輝き続けながらいつしか街の風景に溶け込んでいきます。
1/ 29



















>+9枚の写真

【ライオンズマンション飛鳥山の外観】 住む人を映し出す洗練された佇まいは、いつまでも輝き続けながらいつしか街の風景に溶け込んでいきます。
1/29
セールスポイント
ぜひ一度見ていただきたい「ライオンズマンション飛鳥山」です。徒歩6分圏内に立地する物件です。立地条件の良い中古マンションは生活の質を高めてくれます。浴室乾燥機のあるお風呂場は洗濯物を干すときにも便利。
物件の特徴
- 入居条件
- リフォーム
- キッチン
- 食器洗い乾燥機、システムキッチン
- バス・トイレ
- 追い焚き風呂、浴室乾燥機
- セキュリティ
- オートロック、防犯カメラ
- 建物設備
- 水道(公営)、排水(公共)、ガス(都市ガス)、バルコニー、駐輪場あり、宅配ボックス、24時間ゴミ出し可
- その他の特徴
- 日当たり良好、閑静な住宅地、TVモニタ付インターホン、角部屋
周辺環境
- スーパー
- サミットストア 王子店(1,041m)
- スーパー
- イトーヨーカドー 食品館王子店(54m)
- コンビニ
- 松屋 王子1丁目店(135m)
- コンビニ
- セブンイレブン王子1丁目店(177m)
- コンビニ
- ローソン 王子2丁目店(600m)
- 焼肉
- 牛角 王子店(219m)
- 中華料理
- 餃子の王将 王子店(135m)
- その他
- 吉野家 王子東店(197m)
- その他
- カレーハウスCoCo壱番屋 北区王子明治通店(219m)
- 小学校
- 北区立 柳田小学校(505m)
- 中学校
- 北区立 王子桜中学校(873m)
- 銀行
- 三井住友銀行 王子支店(340m)
- 銀行
- 城北信用金庫 王子営業部(332m)
- 公園
- 北区立 東王子公園 (428m)
- 公園
- 音無親水公園(631m)
- 公園
- 飛鳥山公園(995m)
※地図上の物件位置は近隣に物件が所在することを表すものであり、実際の物件所在地とは異なる場合がございます。

- サミットストア 王子店
詳細情報
- 価格
- 4,799万円
- 管理費・共益費
- 20,240円
- 修繕積立金
- 22,800円
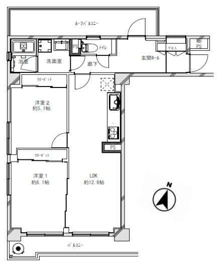
- 間取り/建物面積
- 2LDK / 59.52㎡
- バルコニー面積
- 6.36㎡
- 種別/構造
- 中古マンション / 鉄骨鉄筋コンクリート
- 築年/築年月
- 築42年 / 1983年10月
- 駐車場
- 無
- 所在階
- 8階 / 10階建
- 向き
- 南東
- 土地権利
- 所有権
- 用途地域
- 商業
- 地勢
- -
- 総戸数
- 40戸
- 住所
- 東京都北区王子1丁目27-5地図
- 現況/引渡時期
- 空家 / 相談
- 取引態様
- 一般媒介
- 管理員の勤務形態
- 管理会社に全部委託(管理人巡回)
- 施工会社
- (株)サカエ産業
- 建築確認番号
- -
- 情報更新日
- 2025年12月6日
- 次回更新予定日
- 2025年12月20日
- 備考
- 【こんな方におすすめ】
おしゃれなアクセントウォールを探している!
空間はスッキリ見せたいけど、生活感は隠しきれない!
子どもやペットがいても、空気はきれいに保ちたい!
【アピールポイント】
両面バルコニー付きで通風良好!
日当たりの良い南東住戸!
オートロック・宅配ボックス有り!
ルーフバルコニー付!
【リフォーム内容】~2025年11月室内リフォーム実施~
システムキッチン新規交換(食洗機対応)
洗濯パン新規交換・洗面化粧台新規交換
UB新規交換
フローリング新規張替・建具新規交換
クロス全室新規貼替・給湯器新規交換
トイレ新規交換・照明機器新規交換
下足入れ交換
【ライフインフォメーション】
いさ内科クリニック・・・徒歩2分
柳田公園・・・徒歩2分
セブンイレブン王子一丁目北店・・・徒歩2分
ヨークフーズ王子店・・・徒歩2分
マツモトキヨシ王子店・・・徒歩3分
ファミリーマート王子明治通り店・・・徒歩2分
【学区域】
北区立柳田小学校・・・徒歩5分
北区立王子桜中学校・・・徒歩7分
内装リフォーム:2025年11月(キッチン・浴室・トイレ・壁・床・全室)
いえらぶ物件検索では、質が高く価値のある物件情報をユーザーの皆様に届けられるよう努めています。掲載情報に誤りがある、成約済みの物件を掲載している、無断掲載をしている、などお気づきの点がございましたら「物件110番」よりご連絡ください。

ライオンズマンション飛鳥山
4,799万円管理費等20,240円
JR京浜東北線「王子駅」 徒歩6分

読み込み中










