コスモ梶ヶ谷プレスティージュ - 株式会社スターフォレストが提供する中古マンション情報
5,180万円管理費等17,200円

【コスモ梶ヶ谷プレスティージュの外観】 新規内装リノベーション物件です
1/ 10

【コスモ梶ヶ谷プレスティージュの外観】 新規内装リノベーション物件です
1/10
セールスポイント
~ 内覧予約、フリーコールにて受付中です。弊社独自のサービスがあります。下記備考欄をご覧ください。~
- 入居条件
- リフォーム
- キッチン
- システムキッチン
- バス・トイレ
- 追い焚き風呂
- 室内設備
- ウォークインクロゼット、メゾネット
- 建物設備
- 水道(公営)、排水(公共)、バルコニー、駐輪場あり、宅配ボックス、24時間ゴミ出し可、駐車場あり
- その他の特徴
- TVモニタ付インターホン
周辺環境
- スーパー
- まいばすけっと 溝の口南店(387m)
- コンビニ
- ローソン 梶ケ谷駅前店(365m)
※地図上の物件位置は近隣に物件が所在することを表すものであり、実際の物件所在地とは異なる場合がございます。

- まいばすけっと 溝の口南店
詳細情報
- 価格
- 5,180万円
- 管理費・共益費
- 17,200円
- 修繕積立金
- 18,700円
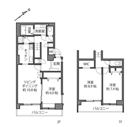
- 間取り/建物面積
- 3LDK / 97.35㎡
- バルコニー面積
- 15.20㎡
- 種別/構造
- 中古マンション / 鉄筋コンクリート
- 築年/築年月
- 築34年 / 1991年6月
- 駐車場
- 空有 / 20,000円
- 所在階
- 1階 / 9階建
- 向き
- 南東
- 土地権利
- 所有権
- 用途地域
- -
- 地勢
- -
- 総戸数
- 46戸
- 住所
- 神奈川県川崎市高津区下作延2丁目25-1地図
- 現況/引渡時期
- 居住中 / 相談
- 取引態様
- 仲介
- 管理員の勤務形態
- 管理会社に全部委託(管理人日勤)
- 施工会社
- -
- 建築確認番号
- -
- 情報更新日
- 2025年11月12日
- 次回更新予定日
- 2025年11月25日
- 備考
- 経験豊富のスタッフが対応いたします
スタッフ全員が大手不動産会社出身です。納得いく条件で
ご購入いただけるように努めていきます!
問い合わせもスピーディーに対応いたします
問い合わせ当日でも、出来る限り希望の物件の内覧が出来るよう
スピーディーに対応させて頂きます。
ご相談に関して料金は頂きません。
お客様の住宅購入を後押ししていきたい為一都三県ご案内可能。
東京・神奈川・埼玉で店舗開設しております。
お気軽にお問い合わせ下さい。
内装リフォーム:2018年6月(キッチン・浴室・トイレ・壁・床・ハウスクリーニング)
リノベーション:2018年6月(新規内装リノベーション)
いえらぶ物件検索では、質が高く価値のある物件情報をユーザーの皆様に届けられるよう努めています。掲載情報に誤りがある、成約済みの物件を掲載している、無断掲載をしている、などお気づきの点がございましたら「物件110番」よりご連絡ください。

コスモ梶ヶ谷プレスティージュ
5,180万円管理費等17,200円
東急田園都市線「梶が谷駅」 徒歩6分

読み込み中








