JR南武線「武蔵新城」新築戸建 - 株式会社LIFE HOMEが提供する新築戸建て情報
3,880万円
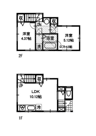
- 間取り
- 2LDK
- 築年数
- 新築(2026年02月完成予定)
- 建物面積(坪数)
- 50.51㎡(15.27坪)
- 土地面積(坪数)
- 54.98㎡(16.63坪)

【JR南武線「武蔵新城」新築戸建の外観】
1/ 9

【JR南武線「武蔵新城」新築戸建の外観】
1/9
セールスポイント
ぜひ一度見ていただきたい、「JR南武線「武蔵新城」新築戸建」です。橘樹歴史公園まで365mです。浴室乾燥機のあるお風呂場は洗濯物を干すときにも便利です。こちらの新築戸建てなら、気分爽快に新生活をスタートできます。不動産購入をお考えの方は、川崎市高津区に強い当社までご連絡ください。きっとお探しの条件に沿った住まいが見つかることでしょう。
物件の特徴
- キッチン
- システムキッチン
- バス・トイレ
- 浴室乾燥機
- セキュリティ
- 複層ガラス
- 室内設備
- 床下収納
- 建物設備
- ガス(都市ガス)、駐車場あり
- その他の特徴
- 日当たり良好、閑静な住宅地、TVモニタ付インターホン、角地
周辺環境
- スーパー
- まいばすけっと 千年店(606m)
- スーパー
- maruetsu(マルエツ) 子母口店(923m)
- スーパー
- ライフ子母口店(892m)
- ショッピングセンター
- 新城北口一番街商店会(1,686m)
- コンビニ
- ファミリーマート 川崎高津千年店(576m)
- コンビニ
- セブンイレブン 川崎子母口店(594m)
- 薬局
- クリエイト薬局ちとせ店(143m)
- 薬局
- ちひろ薬局(561m)
- 総合病院
- 千年診療所(1,125m)
- 幼稚園
- 若竹幼稚園(594m)
- 保育園
- 千年たちばな保育園(415m)
- 保育園
- レッツ・びー千年保育園(759m)
- 保育園
- 子母口わかば保育園(645m)
- 中学校
- 川崎市立東橘中学校(1,353m)
- 郵便局
- 千年神社前郵便局(576m)
- 公園
- 橘樹歴史公園(365m)
- 公園
- たちばなふれあいの森(745m)
- 温泉
- 溝口温泉 喜楽里(1,013m)
- 動物病院
- 田園動物病院(966m)
- 銭湯
- 鈴の湯(625m)
※地図上の物件位置は近隣に物件が所在することを表すものであり、実際の物件所在地とは異なる場合がございます。

- 若竹幼稚園
詳細情報
- 価格
- 3,880万円
- 間取り
- 2LDK
- 建物面積/坪数
- 50.51㎡ / 15.27坪
- 土地面積/坪数
- 54.98㎡ / 16.63坪
- 種別/構造
- 新築戸建て / 木造
- 築年/築年月
- 新築(2026年02月完成予定) / 2026年2月
- 階建て
- 2階建
- 向き
- -
- 接道状況
- 角地(北東 6.4m)(南東 4.0m)
- 私道負担面積
- -
- 土地権利
- 所有権
- 主要採光面
- -
- セットバック
- 無
- 建ぺい率/容積率
- 50% / 100%
- 用途地域
- 第一種低層住居専用
- 地勢
- -
- 都市計画
- -
- 地目
- 宅地
- 国土法届出要否
- 不要
- その他法令上の制限
- -
- 住所
- 神奈川県川崎市高津区子母口地図
- 現況/引渡時期
- 未着工 / 2026年3月上旬
- 取引態様
- 仲介
- 施工会社
- -
- 取引条件の有効期限
- 2025年11月24日
- 情報更新日
- 2025年11月10日
- 次回更新予定日
- 2025年11月24日
- 備考
- こだわりポイント満載のJR南武線「武蔵新城」新築戸建。橘樹歴史公園まで365mです。日中でなくても洗濯物を干せるため日中は忙しいという人にもおすすめな、浴室乾燥機付きの物件です。複層ガラスなので暑い夏のエアコン代も節約することができます。川崎市高津区で住まいを求める方をサポート致します。当社では数多くの不動産情報を取り扱っておりますので、まずはお問い合わせください。
いえらぶ物件検索では、質が高く価値のある物件情報をユーザーの皆様に届けられるよう努めています。掲載情報に誤りがある、成約済みの物件を掲載している、無断掲載をしている、などお気づきの点がございましたら「物件110番」よりご連絡ください。

JR南武線「武蔵新城」新築戸建
3,880万円
JR南武線「武蔵新城駅」 徒歩22分

読み込み中







