125 巻甲作業所付住宅 - 株式会社アーバンハウス新潟が提供する中古戸建て情報
1,350万円
- 交通
- JR越後線「巻駅」 徒歩10分 / バス7分「メディカルセンター病院前」停歩7分
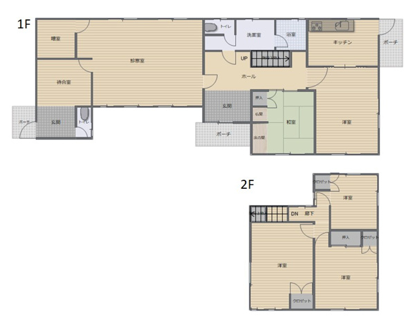
- 間取り
- 4K
- 築年数
- 築45年
- 建物面積(坪数)
- 130.80㎡(39.56坪)
- 土地面積(坪数)
- 164.41㎡(49.73坪)

【 125 巻甲作業所付住宅の外観】
1/ 10

【 125 巻甲作業所付住宅の外観】
1/10
セールスポイント
旧接骨院で住宅(119.77㎡)に作業所(61.93㎡)が併設されている物件。 スーパーなどの商業施設も近く利便性の高い立地になります。 地役権あり
物件の特徴
- 建物設備
- 水道(公営)、排水(公共)、ガス(都市ガス)、駐車場あり
周辺環境
- コンビニ
- セブンイレブン 新潟巻南店(609m)
- スーパー
- 原信 巻店(458m)
- 総合病院
- 新潟西蒲メディカルセンター病院(630m)
- 小学校
- 新潟市立巻南小学校(1,988m)
- 中学校
- 新潟市立巻東中学校(1,681m)
※地図上の物件位置は近隣に物件が所在することを表すものであり、実際の物件所在地とは異なる場合がございます。

- セブンイレブン 新潟巻南店
詳細情報
- 価格
- 1,350万円
- 間取り
- 4K
- 建物面積/坪数
- 130.80㎡ / 39.56坪
- 土地面積/坪数
- 164.41㎡ / 49.73坪
- 種別/構造
- 中古戸建て / 鉄骨造
- 築年/築年月
- 築45年 / 1980年6月
- 階建て
- 2階建
- 向き
- -
- 接道状況
- 一方(南 公道 3.3m)
- 私道負担面積
- -
- 土地権利
- 所有権
- 主要採光面
- -
- セットバック
- 無
- 建ぺい率/容積率
- 60% / 200%
- 用途地域
- 第一種住居
- 地勢
- -
- 都市計画
- 市街化区域
- 地目
- 宅地
- 国土法届出要否
- 不要
- その他法令上の制限
- -
- 住所
- 新潟県新潟市西蒲区巻甲4375-1地図
- 交通
- JR越後線「巻駅」 徒歩10分 / バス7分「メディカルセンター病院前」停歩7分
- 現況/引渡時期
- 完成済 / 相談
- 取引態様
- 専任媒介
- 施工会社
- -
- 情報更新日
- 2025年12月4日
- 次回更新予定日
- 2025年12月18日
- 備考
- 地役権あり
学校区:巻南小/巻東中
管理コード:125
いえらぶ物件検索では、質が高く価値のある物件情報をユーザーの皆様に届けられるよう努めています。掲載情報に誤りがある、成約済みの物件を掲載している、無断掲載をしている、などお気づきの点がございましたら「物件110番」よりご連絡ください。

125 巻甲作業所付住宅
1,350万円
JR越後線「巻駅」 徒歩10分 / バス7分「メディカルセンター病院前」停歩7分

読み込み中








