221 東中中古住宅 - 株式会社アーバンハウス新潟が提供する中古戸建て情報
350万円
- 交通
- JR弥彦線「燕駅」 徒歩89分 / バス28分「吉上」停歩25分
- 間取り
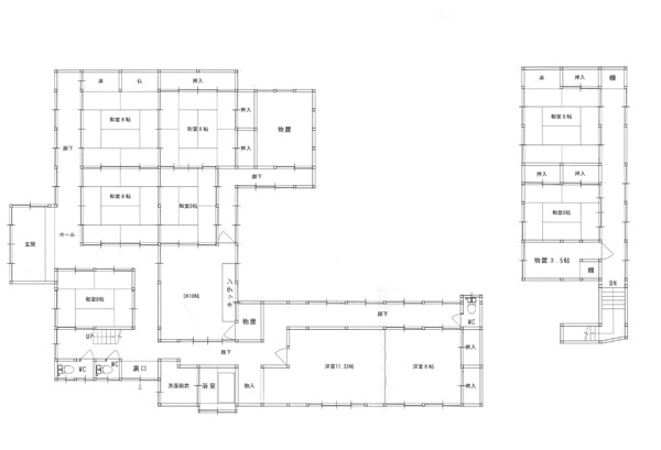
- 8LDK
- 築年数
- 築43年
- 建物面積(坪数)
- 363.14㎡(109.84坪)
- 土地面積(坪数)
- 1105.78㎡(334.49坪)

【 221 東中中古住宅の外観】
1/ 9

【 221 東中中古住宅の外観】
1/9
セールスポイント
東中エリアの中古住宅。 建物面積約110坪、8LDKと広々とした住宅です。 県道127号線に近く車での移動に便利です。
物件の特徴
- キッチン
- ガスコンロ
- 建物設備
- ガス(都市ガス)、駐車場あり
周辺環境
- 小学校
- 新潟市立中之口東小学校(839m)
- 中学校
- 新潟市立中之口中学校(2,144m)
※地図上の物件位置は近隣に物件が所在することを表すものであり、実際の物件所在地とは異なる場合がございます。
詳細情報
- 価格
- 350万円
- 間取り
- 8LDK
- 建物面積/坪数
- 363.14㎡ / 109.84坪
- 土地面積/坪数
- 1105.78㎡ / 334.49坪
- 種別/構造
- 中古戸建て / 木造
- 築年/築年月
- 築43年 / 1982年1月
- 階建て
- 2階建
- 向き
- -
- 接道状況
- 一方(西 公道 5.0m)
- 私道負担面積
- -
- 土地権利
- 所有権
- 主要採光面
- -
- セットバック
- 無
- 建ぺい率/容積率
- 70% / 200%
- 用途地域
- -
- 地勢
- -
- 都市計画
- 市街化調整区域
- 地目
- 宅地
- 国土法届出要否
- 不要
- その他法令上の制限
- -
- 住所
- 新潟県新潟市西蒲区東中462地図
- 交通
- JR弥彦線「燕駅」 徒歩89分 / バス28分「吉上」停歩25分
- 現況/引渡時期
- 完成済 / 相談
- 取引態様
- 専任媒介
- 施工会社
- -
- 情報更新日
- 2025年12月4日
- 次回更新予定日
- 2025年12月18日
- 備考
- 学校区:中之口東小/中之口中
建物未登記 農業用資材置き場あり
いえらぶ物件検索では、質が高く価値のある物件情報をユーザーの皆様に届けられるよう努めています。掲載情報に誤りがある、成約済みの物件を掲載している、無断掲載をしている、などお気づきの点がございましたら「物件110番」よりご連絡ください。

221 東中中古住宅
350万円
JR弥彦線「燕駅」 徒歩89分 / バス28分「吉上」停歩25分

読み込み中








