江別市幸町 - エスケイ不動産流通 株式会社が提供する中古戸建て情報
1,800万円
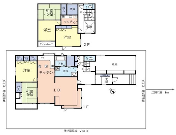
- 間取り
- 5LDK+S(納戸)
- 築年数
- 築43年
- 建物面積(坪数)
- 175.36㎡(53.04坪)
- 土地面積(坪数)
- 277.68㎡(83.99坪)

【江別市幸町の外観】 JR函館本線「高砂」駅まで徒歩9分♪イオン江別店まで徒歩9分!リフォーム素材として適した物件です◎
1/ 45



















>+25枚の写真

【江別市幸町の外観】 JR函館本線「高砂」駅まで徒歩9分♪イオン江別店まで徒歩9分!リフォーム素材として適した物件です◎
1/45
セールスポイント
敷地83.99坪!クワザワ工業施工! リフォーム素材として適した物件です◎ 二世帯向きの5SLDK! JR函館本線「高砂」駅まで徒歩9分♪
物件の特徴
- キッチン
- ガスコンロ
- 室内設備
- 床下収納
- 建物設備
- 水道(公営)、排水(公共)、駐車場あり
- その他の特徴
- 日当たり良好、二世帯住宅
周辺環境
- スーパー
- ビッグハウス 元江別店(1,371m)
- スーパー
- ザ・ビッグ江別店(1,080m)
- スーパー
- 産直生鮮市場 江別店(1,417m)
- ショッピングセンター
- イオン江別店(806m)
- その他
- 珈琲豆屋ほっとたいむ(1,194m)
- その他
- シナモンベーカリー(2,139m)
- コンビニ
- ローソン 江別幸町店(74m)
- コンビニ
- セイコーマート 江別幸町店(433m)
- 薬局
- サツドラ江別錦店(872m)
- 薬局
- ツルハドラッグ江別高砂店(305m)
- 総合病院
- 江別谷藤病院(160m)
- 歯科
- よこた歯科医院(142m)
- 幼稚園
- 元野幌めぐみ幼稚園(2,107m)
- 保育園
- 愛保育園(396m)
- 小学校
- 江別市立中央小学校(571m)
- 中学校
- 江別市立中央中学校(1,710m)
- 銀行
- 北海道銀行大麻支店(5,011m)
- 郵便局
- 野幌錦町郵便局(1,069m)
- ホームセンター
- ホーマック スーパーデポ元江別店(2,133m)
- 生活雑貨
- ザ・ダイソー DAISO 江別幸町店(152m)
※地図上の物件位置は近隣に物件が所在することを表すものであり、実際の物件所在地とは異なる場合がございます。

- ビッグハウス 元江別店
詳細情報
- 価格
- 1,800万円
- 間取り
- 5LDK+S(納戸)
- 建物面積/坪数
- 175.36㎡ / 53.04坪
- 土地面積/坪数
- 277.68㎡ / 83.99坪
- 種別/構造
- 中古戸建て / 木造
- 築年/築年月
- 築43年 / 1982年6月
- 階建て
- 2階建
- 向き
- 南西
- 接道状況
- 一方(南東 公道 8.0m 間口 12.7m)
- 私道負担面積
- -
- 土地権利
- 所有権
- 主要採光面
- 南西
- セットバック
- -
- 建ぺい率/容積率
- 60% / 200%
- 用途地域
- 第二種中高層住居専用
- 地勢
- -
- 都市計画
- 市街化区域
- 地目
- 宅地
- 国土法届出要否
- 不要
- その他法令上の制限
- -
- 住所
- 北海道江別市幸町2-3地図
- 現況/引渡時期
- 完成済 / 相談
- 取引態様
- 仲介
- 施工会社
- クワザワ工業(株)
- 情報更新日
- 2025年11月7日
- 次回更新予定日
- 2025年11月21日
- 備考
いえらぶ物件検索では、質が高く価値のある物件情報をユーザーの皆様に届けられるよう努めています。掲載情報に誤りがある、成約済みの物件を掲載している、無断掲載をしている、などお気づきの点がございましたら「物件110番」よりご連絡ください。

江別市幸町
1,800万円
JR函館本線「高砂駅」 徒歩9分

読み込み中
























