伊都郡かつらぎ町大字笠田東・一戸建て - 株式会社 アクセスエステートが提供する中古戸建て情報
780万円
- 交通
- JR和歌山線「笠田駅」 徒歩6分
- 間取り
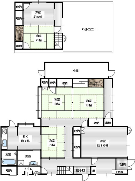
- 6DK
- 築年数
- 築61年
- 建物面積(坪数)
- 94.21㎡(28.49坪)
- 土地面積(坪数)
- 347.88㎡(105.23坪)

【伊都郡かつらぎ町大字笠田東・一戸建ての外観】
1/ 3

【伊都郡かつらぎ町大字笠田東・一戸建ての外観】
1/3
セールスポイント
土地約105坪・笠田駅へ徒歩約6分・約5台の駐車スペースあり・笠田中学校が目の前・諸条件相談します
物件の特徴
- 建物設備
- 水道(公営)、排水(汲取り)、ガス(プロパン)、駐車場あり
- その他の特徴
- 閑静な住宅地
周辺環境
※地図上の物件位置は近隣に物件が所在することを表すものであり、実際の物件所在地とは異なる場合がございます。
詳細情報
- 価格
- 780万円
- 間取り
- 6DK
- 建物面積/坪数
- 94.21㎡ / 28.49坪
- 土地面積/坪数
- 347.88㎡ / 105.23坪
- 種別/構造
- 中古戸建て / 木造
- 築年/築年月
- 築61年 / 1964年1月
- 階建て
- 2階建
- 向き
- -
- 接道状況
- 一方(西 公道 8.0m 間口 2.0m)
- 私道負担面積
- -
- 土地権利
- 所有権
- 主要採光面
- -
- セットバック
- 無
- 建ぺい率/容積率
- 60% / 200%
- 用途地域
- 無指定
- 地勢
- 平坦
- 都市計画
- 未線引区域
- 地目
- 宅地
- 国土法届出要否
- 不要
- その他法令上の制限
- -
- 住所
- 和歌山県伊都郡かつらぎ町大字笠田東101-3地図
- 交通
- JR和歌山線「笠田駅」 徒歩6分
- 現況/引渡時期
- 完成済 / 相談
- 取引態様
- 一般媒介
- 施工会社
- -
- 情報更新日
- 2025年11月7日
- 次回更新予定日
- 2025年11月21日
- 備考
- ご不明な点、ご質問等がありましたら、気兼ねなく、ご一報下さいませ・住宅ローンに、ご不安のあるお客様も、ご相談させて下さい。私、店長の中村は、昭和62年から、不動産業界にお世話になっておりますので、約30年の経験を、惜しみなく伝授させて頂きます。
いえらぶ物件検索では、質が高く価値のある物件情報をユーザーの皆様に届けられるよう努めています。掲載情報に誤りがある、成約済みの物件を掲載している、無断掲載をしている、などお気づきの点がございましたら「物件110番」よりご連絡ください。

伊都郡かつらぎ町大字笠田東・一戸建て
780万円
JR和歌山線「笠田駅」 徒歩6分

読み込み中


