名古屋証券取引所ビル 2階 - 株式会社T-スタイルが提供する賃貸事務所情報
未定管理費等268,444円
敷金/礼金:12ヶ月 / 0円
- 交通
- 名古屋市営東山線「栄駅」 徒歩6分
- 間取り
- -
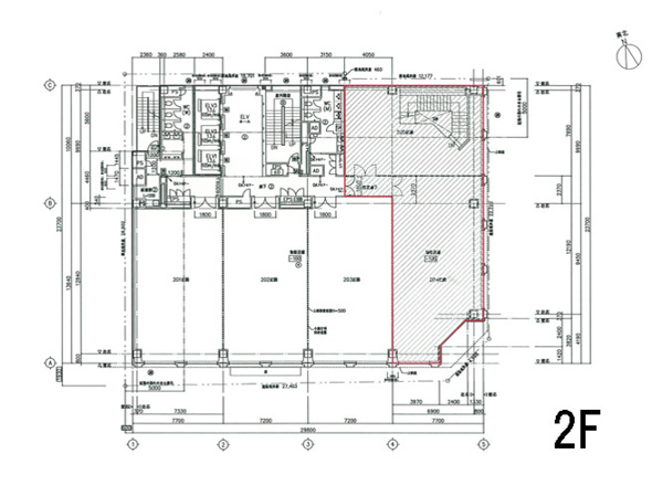
- 広さ
- 201.69㎡
- 築年数
- 築18年
- 階建て
- 2階/7階建

【名古屋証券取引所ビルの外観】
1/ 16

【名古屋証券取引所ビルの外観】
1/16
セールスポイント
条件非公開物件です、お気軽にお問い合わせください。 物販可能・クリニック等可能です。
物件の特徴
- 入居条件
- 事務所可
- 建物設備
- 水道(公営)、排水(公共)、電気有
周辺環境
※地図上の物件位置は近隣に物件が所在することを表すものであり、実際の物件所在地とは異なる場合がございます。
詳細情報
- 賃料
- 未定
- 管理費・共益費
- 268,444円
- 敷金(保証金)
- 12ヶ月
- 礼金(敷引・償却金)
- 0円
- 間取り/専有面積
- - / 201.69㎡
- 種別/構造
- 事務所 / 鉄筋コンクリート
- 築年/築年月
- 築18年 / 2007年8月
- 駐車場
- -
- 階建て
- 2階 / 7階建
- 向き
- -
- 住所
- 愛知県名古屋市中区栄3丁目8-20地図
- 交通
- 名古屋市営東山線「栄駅」 徒歩6分
- 現況/入居可能日
- 賃貸中 / 相談
- 取引態様
- 一般媒介
- 契約期間
- 定期借家 10年
- 物件管理番号
- 600559753
- 保証会社
- -
- 保険
- 要
- 情報更新日
- 2026年1月29日
- 次回更新予定日
- 2026年2月12日
- 備考
いえらぶ物件検索では、質が高く価値のある物件情報をユーザーの皆様に届けられるよう努めています。掲載情報に誤りがある、成約済みの物件を掲載している、無断掲載をしている、などお気づきの点がございましたら「物件110番」よりご連絡ください。

名古屋証券取引所ビル 2階
未定管理費等268,444円
名古屋市営東山線「栄駅」 徒歩6分

読み込み中















