姫路白鷺ビル 304 - 久盛不動産(株)が提供する賃貸事務所情報
24.36万円管理費等69,586円
敷金/礼金:6ヶ月 / 0円
- 交通
- JR山陽本線「姫路駅」 徒歩11分
- 間取り
- -
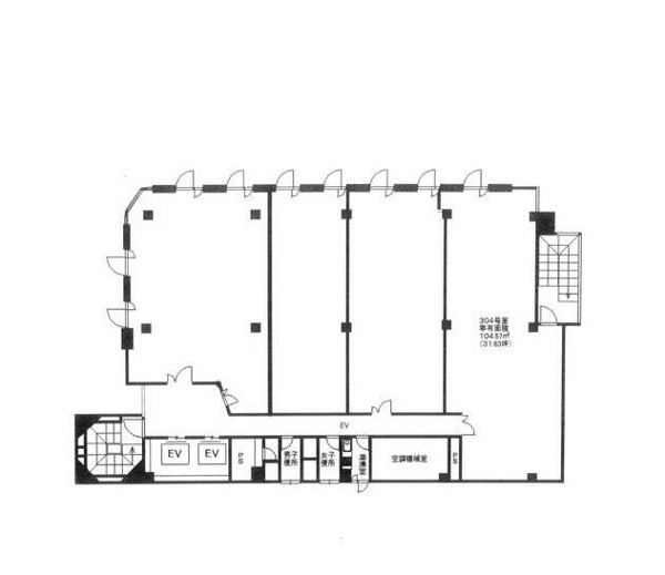
- 広さ
- 104.57㎡
- 築年数
- 築52年
- 階建て
- 10階建(地下2階)

【姫路白鷺ビルの外観】
1/ 5

【姫路白鷺ビルの外観】
1/5
物件の特徴
- 建物設備
- 電気有、エレベーター
周辺環境
※地図上の物件位置は近隣に物件が所在することを表すものであり、実際の物件所在地とは異なる場合がございます。
詳細情報
- 賃料
- 24.36万円
- 管理費・共益費
- 69,586円
- 敷金(保証金)
- 6ヶ月
- 礼金(敷引・償却金)
- 0円(3ヶ月)
- 間取り/専有面積
- - / 104.57㎡
- 種別/構造
- 事務所 / 鉄骨鉄筋コンクリート
- 築年/築年月
- 築52年 / 1973年12月
- 駐車場
- 無
- 階建て
- 10階建(地下2階)
- 向き
- -
- 住所
- 兵庫県姫路市東延末3丁目12地図
- 交通
- JR山陽本線「姫路駅」 徒歩11分
- 現況/入居可能日
- 空家 / 相談
- 取引態様
- 専任媒介
- 契約期間
- -
- 物件管理番号
- 482441791
- 保証会社
- -
- 保険
- 要
- 情報更新日
- 2025年2月6日
- 次回更新予定日
- 2025年12月25日
- 備考
- 1坪@7,000円/月(消費税別)
賃料表示は下2桁までの切上げ表示です。
304号室賃料は243,551円(税込み)になります。
袖看板 1区画(半スパン)3,000円(消費税別)
※他フロアー募集あり(ご希望の面積に合わせて分割にも応じます)
いえらぶ物件検索では、質が高く価値のある物件情報をユーザーの皆様に届けられるよう努めています。掲載情報に誤りがある、成約済みの物件を掲載している、無断掲載をしている、などお気づきの点がございましたら「物件110番」よりご連絡ください。

姫路白鷺ビル 304
24.36万円管理費等69,586円
JR山陽本線「姫路駅」 徒歩11分

読み込み中




